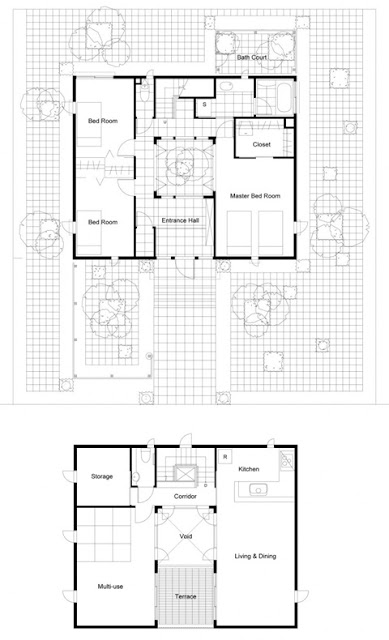
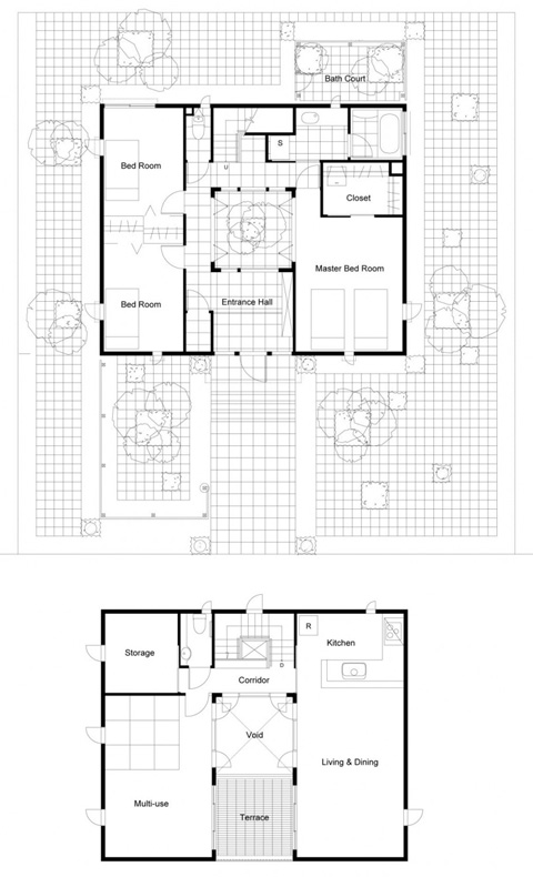
A empresa japonesa Edward Suzuki Associates projetou esta casa que é o primeiro caso de uma casa industrializada no Japão, projetado por um arquiteto. Eduardo Suzuki, trabalha em parceria com Daiwa House Kougyoe um fabricante de habitação principal. Pré-concebida e pré-fabricada e vendida como um “produto pronto”, as características dos compradores, o estilo de vida, condições do local e etc,normalmente não são conhecidos no momento da concepção.
The Japanese firm Edward Suzuki Associates has designed this house which is the first case of an industrialized house in Japan designed by an architect. Eduardo Suzuki works in partnership with Daiwa House Kougyoe a manufacturer of main dwelling. Pre-designed and pre-fabricated and sold as a "finished product" the characteristics of buyers the lifestyle, site conditions, etc. are usually not known at the time of conception.
Visite o site Edward Suzuki Associates
The Japanese firm Edward Suzuki Associates has designed this house which is the first case of an industrialized house in Japan designed by an architect. Eduardo Suzuki works in partnership with Daiwa House Kougyoe a manufacturer of main dwelling. Pre-designed and pre-fabricated and sold as a "finished product" the characteristics of buyers the lifestyle, site conditions, etc. are usually not known at the time of conception.
Visite o site Edward Suzuki Associates












Sem comentários:
Enviar um comentário